Room Plan
空室部屋一覧

アーバネックス小石川春日の空室一覧(全3部屋)

間取りで絞り込む
間取り図 所在階 高い順 低い順
方位
間取 広い順 狭い順
専有面積 広い順 狭い順
賃料 安い順 高い順
共益費
敷金
礼金
物件詳細
お問合せ
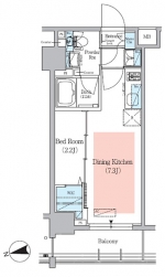
間取り図 3階
1DK
25.00m²
14.8万円
1.5万円
1ヶ月
なし
詳細を見る
お問合せ
間取り図 4階
1DK
25.09m²
14.9万円
1.5万円
1ヶ月
なし
詳細を見る
お問合せ
間取り図 6階
2LDK
40.79m²
22.7万円
2万円
1ヶ月
なし
詳細を見る
お問合せ

間取りプランを見る

お問合せはレジデントファースト株式会社まで

0120-321-364
営業時間 : 9:30 〜 18:00

※掲載の徒歩分数は、建物の出入口を起点とし駅出入口およびバス停などを着点とした概算距離を基に、80mを1分として算出(端数切り上げ)したものです。
※間取り表記のN(納戸)やS(サービスルーム)は、居室以外の空間を表しています。
詳細については(https://www.mitsui-chintai.co.jp/service/annotation/layout.html)をご確認ください。
※三井不動産レジデンシャルリース(株)およびレジデントファースト(株)は
(一社)不動産流通経営協会会員および(公社)首都圏不動産公正取引協議会加盟事業者です。