| 賃料 | 21.5万円 | 管理費・共益費 | 0.8万円 | ||
|---|---|---|---|---|---|
| 敷金/保証金 | 1ヶ月/- | 礼金/償却・敷引 | 1ヶ月/- | ||
| 更新料 | 1ヶ月 | その他の費用 |
鍵交換費用:22,000円 室内清掃費用:73,288円 口座振替事務手数料:110円 |
||
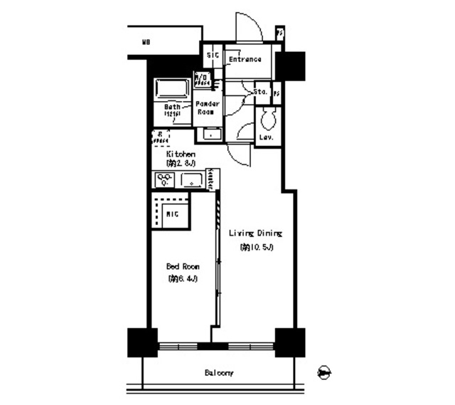
| 間取り | 1LDK | 専有面積 | 47.59m² | ||
| 所在階/階建 | 9階/ 23階建(B1階) | 契約期間 | 24ヶ月間 | ||
| 引渡 | 2026年04月中旬 | 現況(予定年月) | 空家 | ||
| 保証会社 |
保証人代行必須 オリコフォレントインシュア 初回保証委託料(最低20,000円):月額賃料等の50%、2年目以降:10,000円/年 |
保険 |
借家人賠償責任保険を付帯した 火災保険にご加入いただききます |
||
| 備考 | ■電子契約不可/オール電化/駐輪場有(ステッカー代4,400円税込)/退室時エアコンクリ-ニング入居 | ||||
| 情報更新日 | 2026年3月22日 | ||||