賃料 | 126万円 | 管理費・共益費 | なし | ||
---|---|---|---|---|---|
敷金/保証金 | 2ヶ月/- | 礼金/償却・敷引 | なし/- | ||
更新料 | - | その他の費用 | - | ||
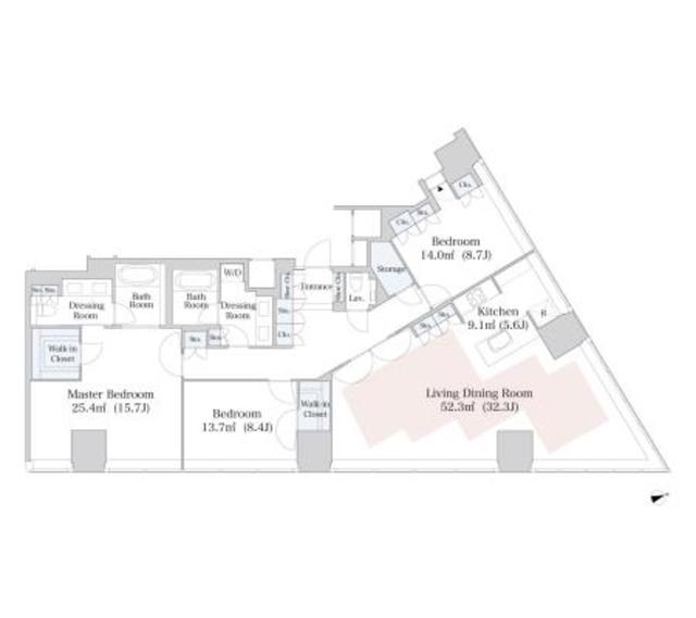
間取り | 3LDK | 専有面積 | 169.50m² | ||
所在階/階建 | 29階/ 44階建(B2階) | 契約期間 | 24ヶ月間 | ||
引渡 | 即時 | 現況(予定年月) | 空家 | ||
保証会社 | - | 保険 |
借家人賠償責任保険を付帯した 火災保険にご加入いただききます |
||
備考 | 2沿線利用可 | ||||
情報更新日 | 2025年10月7日 |