ROOM PLAN
部屋詳細

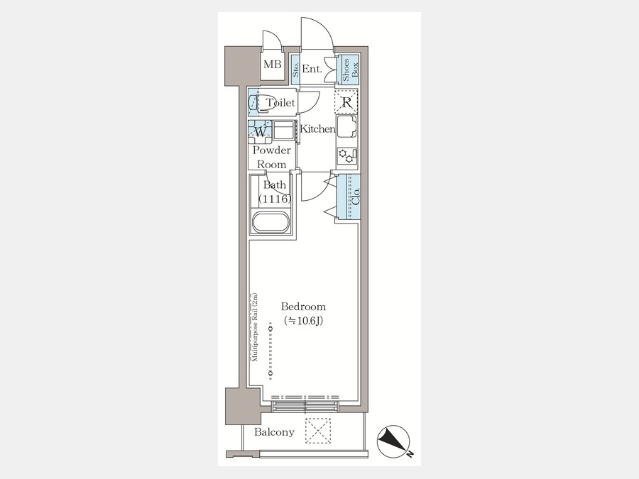
5階/1K/30.93m²/14.1万円/ 503
賃料 14.1万円 管理費・共益費 1万円
敷金/保証金 1ヶ月/- 礼金/償却・敷引 なし/-
更新料 1ヶ月 その他の費用 室内清掃費用:59,400円
口座振替事務手数料:110円
間取り 1K 専有面積 30.93m²
所在階/階建 5階/ 10階建 契約期間 24ヶ月間
引渡 2026年03月上旬 現況(予定年月) 未完成
保証会社 保証人代行必須
クレディセゾン・レジデントアシスタンス株式会社
初回保証委託料(最低15,000円):月額賃料等の50%、 2年目以降:10,000円/年
保険 借家人賠償責任保険を付帯した
火災保険にご加入いただききます
備考 賃貸戸数:76戸
情報更新日 2026年3月3日

借りたい

この部屋のお問い合わせ・内見予約はレジデントファースト株式会社まで

0120-321-364