| 賃料 | 17.3万円 | 管理費・共益費 | 1.2万円 | ||
|---|---|---|---|---|---|
| 敷金/保証金 | 1ヶ月/- | 礼金/償却・敷引 | なし/- | ||
| 更新料 | 1ヶ月 | その他の費用 |
室内清掃費用:48,400円 口座振替事務手数料:110円 |
||
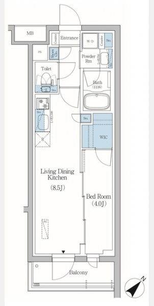
| 間取り | 1LDK | 専有面積 | 32.13m² | ||
| 所在階/階建 | 4階/ 4階建 | 契約期間 | 24ヶ月間 | ||
| 引渡 | 即時 | 現況(予定年月) | 空家 | ||
| 保証会社 |
保証人代行必須 クレディセゾン・レジデントアシスタンス株式会社 初回保証委託料(最低15,000円):月額賃料等の50%、 2年目以降:10,000円/年 |
保険 |
借家人賠償責任保険を付帯した 火災保険にご加入いただききます |
||
| 備考 | 賃貸戸数:39戸 | ||||
| 情報更新日 | 2026年3月7日 | ||||