ROOM PLAN
部屋詳細

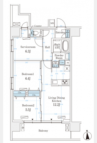
***/2SLDK/65.15m²/***/ 603

本情報は過去に掲載された物件の参考情報です。 最新の物件情報など詳細につきましてはお気軽にお問合せください。

賃料 *** 管理費・共益費 ***
敷金/保証金 ***/*** 礼金/償却・敷引 ***/***
更新料 *** その他の費用 ***
間取り 2SLDK 専有面積 65.15m²
所在階/階建 ***/ 14階建 契約期間 ***
引渡 2026年03月中旬 現況(予定年月) 未完成
保証会社 保証人代行必須
レジデントアシスタンス株式会社
初回保証委託料(最低20,000円):月額賃料等の50%、 2年目以降:9,600円/年
保険 借家人賠償責任保険を付帯した
火災保険にご加入いただききます
備考 賃貸戸数:65戸
情報更新日 2026年3月23日

借りたい

この部屋のお問い合わせ・内見予約はレジデントファースト株式会社まで

0120-321-271