| 賃料 | 18.3万円 | 管理費・共益費 | 1.2万円 | ||
|---|---|---|---|---|---|
| 敷金/保証金 | 1ヶ月/- | 礼金/償却・敷引 | 1.5ヶ月/- | ||
| 更新料 | 1ヶ月 | その他の費用 |
室内清掃費用:121,830円 口座振替事務手数料:110円 |
||
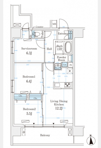
| 間取り | 2SLDK | 専有面積 | 65.15m² | ||
| 所在階/階建 | 11階/ 14階建 | 契約期間 | 24ヶ月間 | ||
| 引渡 | 2026年03月中旬 | 現況(予定年月) | 未完成 | ||
| 保証会社 |
保証人代行必須 レジデントアシスタンス株式会社 初回保証委託料(最低20,000円):月額賃料等の50%、 2年目以降:9,600円/年 |
保険 |
借家人賠償責任保険を付帯した 火災保険にご加入いただききます |
||
| 備考 | 賃貸戸数:65戸 | ||||
| 情報更新日 | 2026年2月10日 | ||||