ROOM PLAN
部屋詳細

7階/2LDK/50.08m²/17.8万円/ 704
賃料 17.8万円 管理費・共益費 1.2万円
敷金/保証金 1ヶ月/- 礼金/償却・敷引 2ヶ月/-
更新料 1ヶ月 その他の費用 室内清掃費用:93,649円
口座振替事務手数料:220円
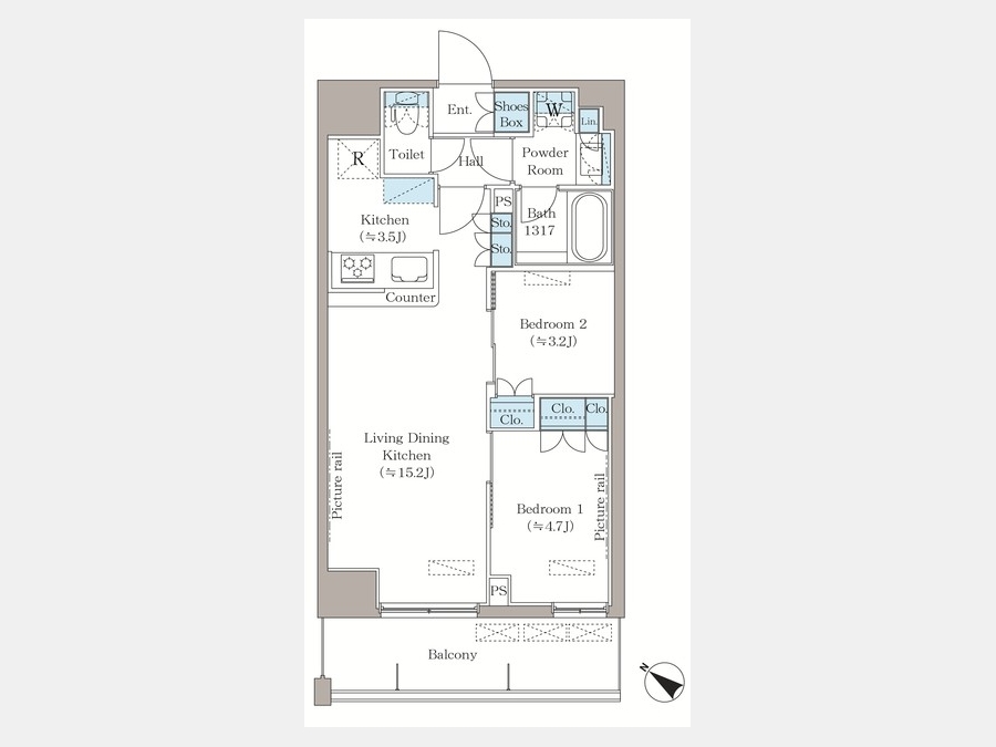
間取り 2LDK 専有面積 50.08m²
所在階/階建 7階/ 9階建 契約期間 24ヶ月間
引渡 即時 現況(予定年月) 空家
保証会社 保証人代行必須
クレディセゾン・レジデントアシスタンス株式会社
初回保証委託料(最低15,000円):月額賃料等の50%、 2年目以降:10,000円/年
保険 借家人賠償責任保険を付帯した
火災保険にご加入いただききます
備考 賃貸戸数:39戸
2駅利用可
2沿線利用可
情報更新日 2026年3月1日

借りたい

この部屋のお問い合わせ・内見予約はレジデントファースト株式会社まで

0120-321-271