| 賃料 | 30.8万円 | 管理費・共益費 | 1.2万円 | ||
|---|---|---|---|---|---|
| 敷金/保証金 | 1ヶ月/- | 礼金/償却・敷引 | なし/- | ||
| 更新料 | - | その他の費用 |
鍵交換費用:22,000円 室内清掃費用:88,919円 口座振替事務手数料:220円 |
||
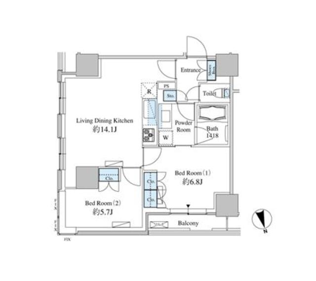
| 間取り | 2LDK | 専有面積 | 57.74m² | ||
| 所在階/階建 | 20階/ 30階建(B3階) | 契約期間 | 24ヶ月間 | ||
| 引渡 | 2026年03月上旬 | 現況(予定年月) | 空家 | ||
| 保証会社 |
保証人代行必須 オリコフォレントインシュア 初回保証委託料(最低20,000円):月額賃料等の50%、2年目以降:10,000円/年 |
保険 |
借家人賠償責任保険を付帯した 火災保険にご加入いただききます |
||
| 備考 | フリーレント1ヶ月。■電子契約不可■1年未満解約違約金あり(賃料1ヶ月分)■再契約相談可能 | ||||
| 情報更新日 | 2026年2月21日 | ||||