本情報は過去に掲載された物件の参考情報です。 最新の物件情報など詳細につきましてはお気軽にお問合せください。
| 賃料 | *** | 管理費・共益費 | *** | ||
|---|---|---|---|---|---|
| 敷金/保証金 | ***/*** | 礼金/償却・敷引 | ***/*** | ||
| 更新料 | *** | その他の費用 | *** | ||
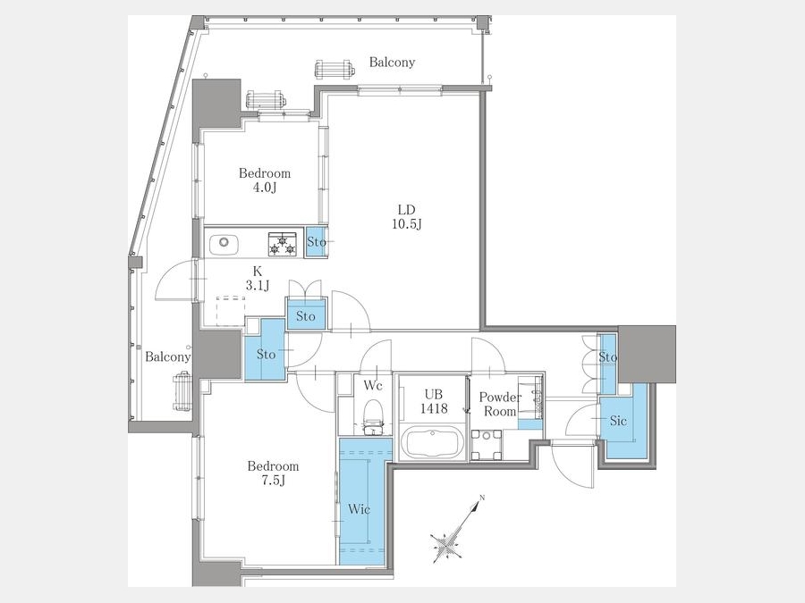
| 間取り | 2LDK | 専有面積 | 66.00m² | ||
| 所在階/階建 | ***/ 14階建(B1階) | 契約期間 | *** | ||
| 引渡 | 2026年02月中旬 | 現況(予定年月) | 空家 | ||
| 保証会社 |
保証人代行可能 レジデントアシスタンス株式会社 初回保証委託料(最低20,000円):月額賃料等の50%、 2年目以降:9,600円/年 |
保険 |
借家人賠償責任保険を付帯した 火災保険にご加入いただききます |
||
| 備考 | 駐輪場利用可有料・ステッカー代別¥1,100(税込) NURO光無料 ※退去時ACクリーニング(1. | ||||
| 情報更新日 | 2026年2月11日 | ||||