| 賃料 | 20.8万円 | 管理費・共益費 | なし | ||
|---|---|---|---|---|---|
| 敷金/保証金 | 1ヶ月/- | 礼金/償却・敷引 | 1ヶ月/- | ||
| 更新料 | 1ヶ月 | その他の費用 |
鍵交換費用:33,000円 室内清掃費用:59,400円 口座振替事務手数料:220円 |
||
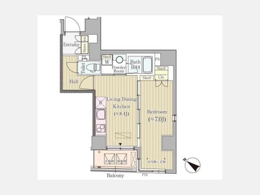
| 間取り | 1LDK | 専有面積 | 36.10m² | ||
| 所在階/階建 | 6階/ 10階建 | 契約期間 | 24ヶ月間 | ||
| 引渡 | 2026年04月下旬 | 現況(予定年月) | 居住中 | ||
| 保証会社 |
保証人代行必須 レジデントアシスタンス株式会社 初回保証委託料(最低20,000円):月額賃料等の50%、 2年目以降:9,600円/年 |
保険 |
借家人賠償責任保険を付帯した 火災保険にご加入いただききます |
||
| 備考 | ■電子契約不可 駐輪場9番付・ステッカー代¥1,100 ※退去時ACクリーニング(1.5‐2.5万円 | ||||
| 情報更新日 | 2026年2月22日 | ||||