本情報は過去に掲載された物件の参考情報です。 最新の物件情報など詳細につきましてはお気軽にお問合せください。
| 賃料 | *** | 管理費・共益費 | *** | ||
|---|---|---|---|---|---|
| 敷金/保証金 | ***/*** | 礼金/償却・敷引 | ***/*** | ||
| 更新料 | *** | その他の費用 | *** | ||
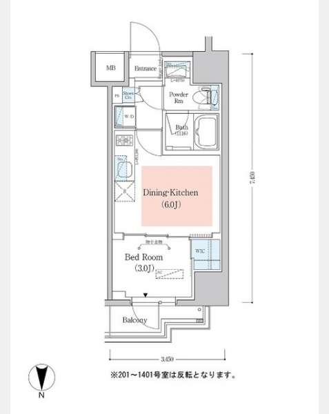
| 間取り | 1DK | 専有面積 | 25.25m² | ||
| 所在階/階建 | ***/ 14階建 | 契約期間 | *** | ||
| 引渡 | 2026年02月下旬 | 現況(予定年月) | 空家 | ||
| 保証会社 |
保証人代行必須 クレディセゾン・レジデントアシスタンス株式会社 初回保証委託料(最低15,000円):月額賃料等の50%、 2年目以降:10,000円/年 |
保険 |
借家人賠償責任保険を付帯した 火災保険にご加入いただききます |
||
| 備考 | ■電子契約不可■【1年未満短期解約違約金あり】賃料1ケ月分とFRありの場合はFR分(賃料+共益費)■ | ||||
| 情報更新日 | 2026年2月27日 | ||||