本情報は過去に掲載された物件の参考情報です。 最新の物件情報など詳細につきましてはお気軽にお問合せください。
| 賃料 | *** | 管理費・共益費 | *** | ||
|---|---|---|---|---|---|
| 敷金/保証金 | ***/*** | 礼金/償却・敷引 | ***/*** | ||
| 更新料 | *** | その他の費用 | *** | ||
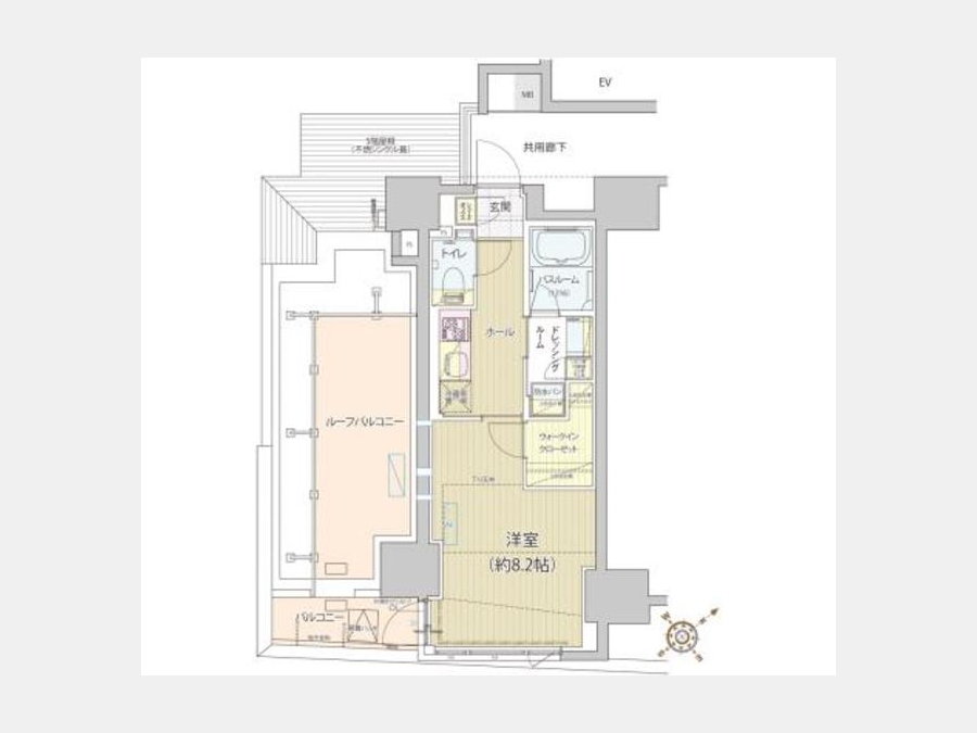
| 間取り | 1K | 専有面積 | 29.58m² | ||
| 所在階/階建 | ***/ 15階建 | 契約期間 | *** | ||
| 引渡 | - | 現況(予定年月) | 空家 | ||
| 保証会社 |
保証人代行必須 ウェオルフォンソリューションズ・ジェイリース 初回保証料:月額賃料等の50%、年間保証料:10,000円(もしくは月額保証料:1,000円)※物件指定 |
保険 |
借家人賠償責任保険を付帯した 火災保険にご加入いただききます |
||
| 備考 | 退去時ACクリーニング:借主負担 (15,000‐25,000円/台)、駐輪場1台込み・No17・区 | ||||
| 情報更新日 | 2026年1月11日 | ||||