| 賃料 | 15.4万円 | 管理費・共益費 | なし | ||
|---|---|---|---|---|---|
| 敷金/保証金 | 1ヶ月/- | 礼金/償却・敷引 | 1ヶ月/- | ||
| 更新料 | 1ヶ月 | その他の費用 |
入居時の玄関錠交換代:33,000円 退去時の通常清掃費用:55,000円 口座振替事務手数料:110円 |
||
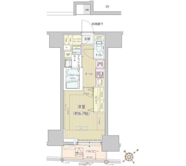
| 間取り | 1K | 専有面積 | 25.18m² | ||
| 所在階/階建 | 15階/ 15階建 | 契約期間 | 24ヶ月間 | ||
| 引渡 | 2026年02月下旬 | 現況(予定年月) | 居住中 | ||
| 保証会社 |
保証人代行必須 ウェオルフォンソリューションズ・ジェイリース 初回保証料:月額賃料等の50%、年間保証料:10,000円(もしくは月額保証料:1,000円)※物件指定 |
保険 |
借家人賠償責任保険を付帯した 火災保険にご加入いただききます |
||
| 備考 | |||||
| 情報更新日 | 2026年1月25日 | ||||